0
Passer au contenu
Projets
Contact
Ouvrir le menu
Fermer le menu
Ouvrir le menu
Fermer le menu
Projets
Contact
Projets
Contact
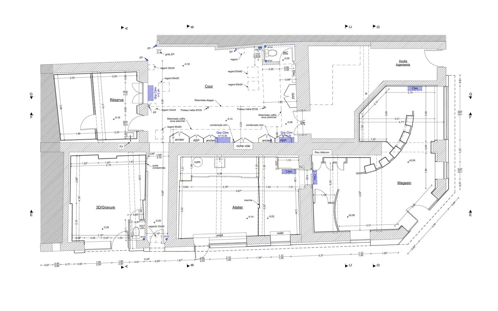
Bijouterie
Relevé d’une bijouterie de ville pour réaménagement intérieur.
Précédent
Précédent
Habitat individuel
Suivant
Suivant
Maison de ville