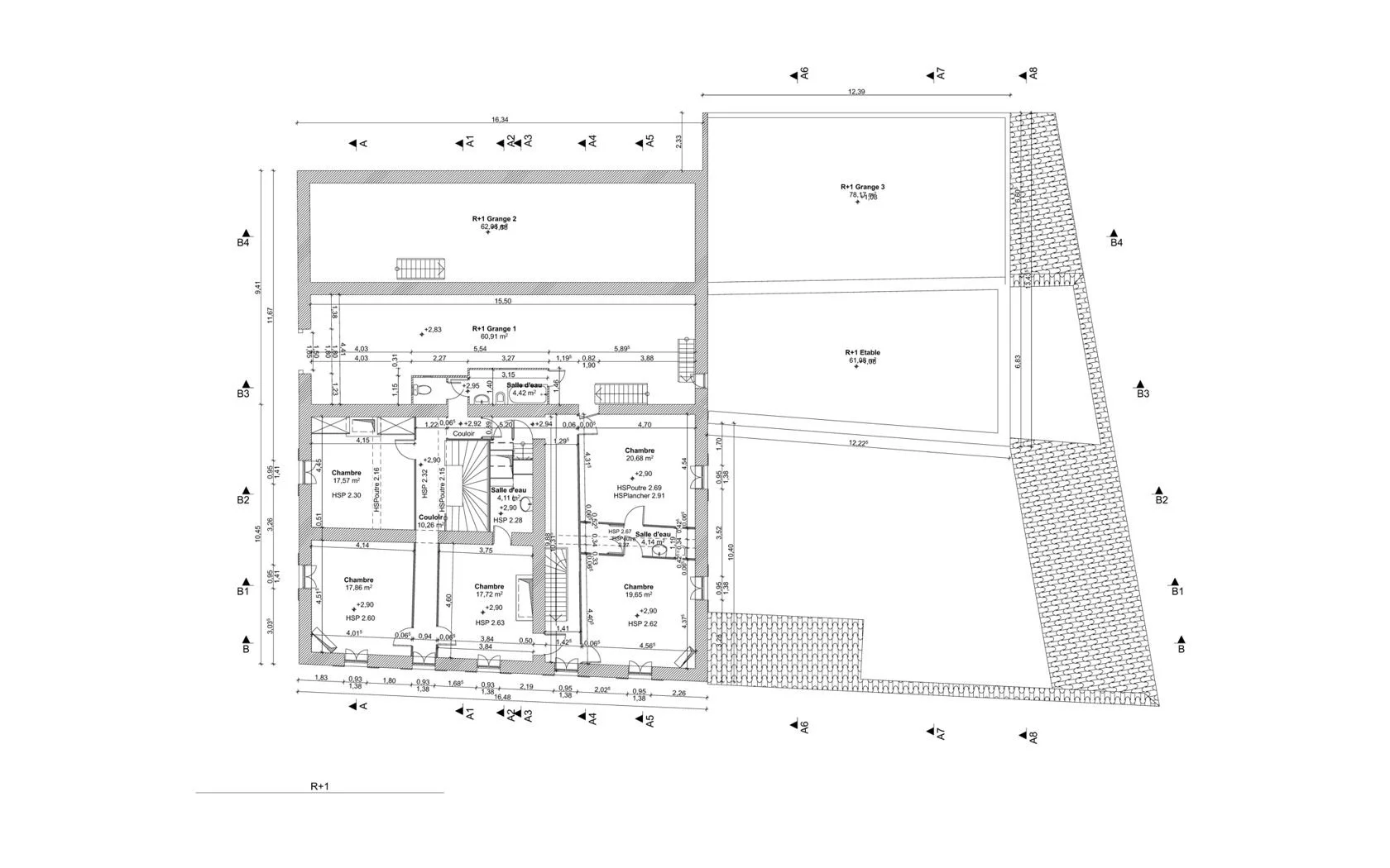
Corps de ferme

Relevé d’un corps de ferme pour son entière rénovation.

Précédent
Précédent

Maison de ville

Suivant
Suivant

Habitat individuel